您当前位置:网站首页> 产品展示> 风机系列> 消防排烟风机> HTFC系列低噪声消防通风(两用)柜式离心风机
产品展示 / Products Show
1、WEXD系列边墙风机
2、WBXD系列板壁式轴流风机
4、KDF系列空调风机
厨房排烟家用新风机
HTFC(A)型柜式离心风机(消防通风两用)
机号:9#-30# 风量:1775-91820m3/h 全压:153-996Pa
特点:电机外置,风量大、噪声低、耐高温性能优良、外形美观、进出口位置形式多、安装方便(吊装、坐地安装均可)
应用:宾馆、饭店、礼堂、影剧院、地下室、厂矿企业、办公楼等需要消防排烟、厨房排油烟及通风换气场合
HTFC(B)型柜式离心风机(通风用)
机号:9#-30# 风量:1775-91820m3/h 全压:153-996Pa 
特点:电机内置,风量大、噪声低、结构新颖紧凑、外形美观、安装方便(吊装、坐地安装均可)
应用:宾馆、饭店、礼堂、影剧院、地下室、厂矿企业、办公楼等低噪声通风换气场合
一、性能参数表
HTFC-Ⅰ型(单速)

机号

转速(rpm)

风量
(m3/h)

风压
(Pa)

功率
(kW)

噪声
dB(A)

重量
(Kg)

9

1000

1775

199

0.37

54

50

2045

197

2315

189

2586

180

0.55

55

50

2856

168

3127

153

1200

2129

287

0.55

56

51

2454

283

2778

273

3103

259

0.75

57

53

3427

242

3752

220

1400

2484

390

0.75

59

54

2963

386

3241

371

3620

352

1.1

61

57

3999

329

4377

300

1600

2896

522

1.1

62

59

3402

509

3743

489

4086

472

1.5

63

59

4591

435

5107

398

机号

转速(rpm)

风量
(m3/h)

风压
(Pa)

功率
(kW)

噪声
dB(A)

重量
(Kg)

10

9000

2316

214

0.55

54

75

2627

212

2938

206

3249

196

0.75

55

78

3561

182

3872

166

1100

2831

319

0.75

57

78

3211

316

3591

308

4272

293

1.1

58

82

4352

272

4732

248

1300

3345

446

1.1

60

83

3795

442

4244

430

4694

409

1.5

61

83

5143

380

5592

347

1500

3915

596

1.5

63

83

4505

581

4930

559

5612

544

2.2

64

87

6052

509

6494

472

机号

转速(rpm)

风量
(m3/h)

风压
(Pa)

功率
(kW)

噪声
dB(A)

重量
(Kg)

12

800

3211

245

0.75

57

110

3735

243

4259

237

4783

228

1.1

58

114

5307

216

5831

199

950

3813

345

1.1

59

116

4435

342

5057

334

5679

322

1.5

60

116

6302

304

6924

281

1100

4415

462

1.5

61

117

5135

459

5856

448

6576

431

2.2

62

124

7279

408

8017

377

1200

5272

571

2.2

64

128

6295

560

6974

544

7820

509

3.0

65

128

8677

478

9186

460

18

600

6519

276

2.2

64

250

7648

266

8778

260

9908

250

3.0

65

250

11038

238

12168

222

700

7605

367

3.0

66

252

8923

362

10241

353

11560

341

4.0

67

268

12878

324

14196

303

800

8691

479

4.0

68

280

10198

473

11704

462

13211

445

5.5

69

282

14717

423

16224

395

900

9778

607

5.5

70

282

11473

599

13168

584

14862

563

7.5

71

320

16557

535

18252

500

机号

转速(rpm)

风量
(m3/h)

风压
(Pa)

功率
(kW)

噪声
dB(A)

重量
(Kg)

15

700

5106

276

1.1

59

172

5123

268

7148

256

7825

274

1.5

61

173

8806

236

9187

224

800

5786

358

1.5

62

173

6463

350

7489

342

8672

332

2.2

63

185

9526

318

10544

298

900

6490

455

2.2

64

174

7544

450

8599

436

9653

420

3.0

65

178

10708

399

11762

372

1000

7211

561

3.0

66

178

8382

556

9554

539

10726

518

4.0

67

183

11898

493

13069

460

20

550

10725

310

3.0

63

320

12126

306

13528

297

14929

281

4.0

64

333

16331

260

17875

233

650

12675

433

4.0

65

333

14331

428

15987

414

17644

392

5.5

66

344

19300

363

21125

325

750

14625

576

5.5

68

344

16536

570

18447

551

20358

522

7.5

69

379

22269

484

24375

433

850

16575

740

7.5

70

379

18741

732

20907

708

23072

670

11

71

407

25238

621

27625

556

机号

转速(rpm)

风量
(m3/h)

风压
(Pa)

功率
(kW)

噪声
dB(A)

重量
(Kg)

22

400

10200

212

1.5

62

348

12206

198

13600

186

14671

176

2.2

63

380

15812

166

17008

150

500

12534

304

3.0

64

380

14196

301

15858

290

17520

276

4.0

66

390

19818

255

20843

230

600

15041

437

5.5

68

404

17035

433

19029

418

21024

397

7.5

70

410

23018

367

25012

331

700

17548

595

7.5

71

410

19874

589

22201

569

24528

540

11

73

432

26854

500

29181

450

800

20055

787

11

74

432

22714

769

25373

743

28031

705

15

76

430

30690

653

33349

588

27

400

24225

323

5.5

67

506

28056

318

30612

310

33153

286

7.5

68

526

35708

273

38250

260

450

27040

412

7.5

69

528

30082

407

33124

394

36166

374

11

70

550

39208

351

42250

322

500

30044

508

11

71

554

33424

502

36804

487

40184

462

15

72

618

43564

433

46944

398

550

33049

615

15

73

620

36767

608

40485

589

44203

559

18.5

74

660

47921

524

51639

482

600

36053

732

18.5

75

660

40109

723

44165

701

48221

666

22

76

660

52277

624

56333

573

机号

转速(rpm)

风量
(m3/h)

风压
(Pa)

功率
(kW)

噪声
dB(A)

重量
(Kg)

25

450

19013

332

4.0

64

418

21294

327

23576

318

25857

304

5.5

65

430

28139

285

31637

251

500

21125

410

5.5

66

436

23660

404

26195

393

28730

376

7.5

67

480

31265

352

35152

310

550

23238

496

7.5

68

482

26026

489

28815

476

31603

455

11

69

485

34392

426

38667

375

600

25350

590

11

70

488

28392

582

31434

566

34476

541

15

71

516

37518

507

42182

446

650

27206

710

11

71

492

32303

595

36554

658

40375

608

15

72

520

42755

571

46758

534

30

350

25503

300

5.5

67

532

30602

293

34004

284

37408

268

7.5

68

550

40806

248

43470

233

400

29575

386

7.5

69

550

33462

382

37349

370

41236

352

11

70

570

45123

330

49010

300

450

33272

488

11

71

574

37645

483

42018

468

46391

446

15

72

640

50763

417

55136

380

500

36969

603

18.5

74

656

41828

597

46686

577

51545

550

22

75

680

56404

515

61623

469

550

40666

729

22

76

682

46010

722

51355

699

56700

666

30

77

720

62044

624

67389

567

机号

转速(rpm)

风量
(m3/h)

风压
(Pa)

功率
(kW)

噪声
dB(A)

重量
(Kg)

33

300

28900

262

7.5

68

640

34340

257

39780

240

45220

214

11

69

662

50660

185

56100

156

350

36550

355

11

70

666

41820

345

47090

322

52360

297

15

71

680

57630

264

62900

230

400

40800

468

15

72

684

46240

458

51680

438

57120

410

18.5

73

710

62560

371

68060

330

450

46740

591

22

75

755

51850

583

56930

561

62080

536

30

76

770

67160

503

72240

436

500

51340

722

30

77

778

56440

714

61880

682

67320

660

37

78

810

72760

628

78200

578

机号

转速(rpm)

风量
(m3/h)

风压
(Pa)

功率
(kW)

噪声
dB(A)

重量
(Kg)

36

300

35700

297

11

69

740

41480

282

47260

254

53040

224

15

70

750

58820

186

64600

151

350

39100

403

15

71

764

45560

395

52020

365

58480

325

18.5

72

790

64940

277

71400

234

400

45900

528

22

74

835

52360

513

58820

483

65280

440

30

75

855

71740

390

78200

332

450

52700

672

30

76

860

59160

651

65620

616

72080

566

37

77

890

78540

511

85020

453

500

57810

830

37

79

900

64610

810

71390

775

78230

722

45

80

920

85050

657

91820

584

HTFC-Ⅱ型(双速)

机号

组号

转速(rpm)

风量
(m3/h)

风压
(Pa)

功率
(kW)

噪声
dB(A)

重量
(Kg)

12

1

1100

4415

462

2.2/0.7

62

138

5135

459

5856

448

6576

431

7297

408

8017

377

700

2810

187

56

3268

186

3726

182

4185

175

4643

165

5102

152

2

1200

5272

571

3.2/1.1

64

179

6295

560

6974

544

7820

509

8677

478

9186

460

800

3211

245

58

3735

243

4259

237

4783

228

5307

216

5831

199

机号

组号

转速(rpm)

风量
(m3/h)

风压
(Pa)

功率
(kW)

噪声
dB(A)

重量
(Kg)

15

1

1000

7211

561

3.2/1.1

66

183

8382

556

9554

539

10726

518

11898

493

13069

460

660

4687

237

59

5449

235

6210

228

6972

219

7733

208

8495

194

2

1100

7932

679

4.7/1.5

68

199

9221

672

10510

652

11798

627

13087

596

14376

556

750

5408

316

62

6287

312

7166

303

8044

292

8923

277

9802

259

机号

组号

转速(rpm)

风量
(m3/h)

风压
(Pa)

功率
(kW)

噪声
dB(A)

重量
(Kg)

18

1

900

9778

607

6.7/2.2

71

345

11473

599

13168

584

14862

563

16557

535

18252

500

600

6519

276

65

7648

266

8778

260

9908

250

11038

238

12168

222

2

1050

11408

826

9.5/3.1

73

353

13385

815

15362

795

17339

767

19317

728

21294

681

700

7605

367

67

8923

362

10241

353

11560

341

12878

324

14196

303

22

1

750

18801

684

12/4

74

484

21294

676

23787

653

26280

620

28772

574

31265

517

500

12534

304

66

14196

290

15858

276

17520

255

19181

230

20843

837

2

830

20807

828

15.5/5.1

75

521

23565

800

26324

759

29083

702

31841

633

34600

368

550

13788

364

67

15616

351

17444

333

19272

308

21100

278

22928

 

机号

组号

转速(rpm)

风量
(m3/h)

风压
(Pa)

功率
(kW)

噪声
dB(A)

重量
(Kg)

20

1

850

16575

740

12/4

71

459

18741

732

20907

708

23072

670

25238

621

27625

556

550

10725

310

64

12126

306

13528

297

14929

281

16331

260

17875

233

2

900

17550

829

15.5/5.1

72

497

19840

820

22136

794

24430

751

26723

697

29250

623

600

11700

369

65

13229

365

14758

353

16286

334

17815

310

19500

277

25

1

750

31688

922

18.5/6.2

67

778

35490

910

39293

884

43095

845

45160

815

46898

792

500

21125

410

77

23660

404

26195

393

28730

376

29965

364

31265

352

2

800

33800

1049

26/8.7

69

778

37856

1035

41912

1006

45968

962

48006

934

50024

902

550

23238

496

 

26026

489

28815

476

31603

455

32477

440

34392

426

机号

组号

转速(rpm)

风量
(m3/h)

风压
(Pa)

功率
(kW)

噪声
dB(A)

重量
(Kg)

27

1

650

39058

859

26/8.7

77

876

43452

849

47846

823

52240

781

54379

758

56634

732

450

27040

412

70

30082

407

33124

394

36166

374

37864

362

39208

351

2

700

42062

996

33/11

78

908

46794

984

51526

954

56258

906

58457

874

60990

849

500

30044

508

72

33424

502

36804

487

40184

462

41786

448

43564

433

33

1

450

46740

591

31/11

76

1090

51850

583

56930

561

62080

536

67160

503

72240

436

300

28900

262

69

34340

257

39780

240

45220

214

50660

185

56100

156

2

500

51340

722

39/11

78

1160

56440

714

61880

682

67320

660

72760

628

78200

578

350

36550

355

71

41820

345

47090

322

52360

297

57630

264

62900

230

机号

组号

转速(rpm)

风量
(m3/h)

风压
(Pa)

功率
(kW)

噪声
dB(A)

重量
(Kg)

30

1

550

40666

729

26/8.7

78

960

46010

722

51355

699

56700

666

62044

624

67389

567

370

27111

324

70

30673

321

34237

311

37800

296

41363

277

44926

252

2

600

50193

859

33/11

79

1045

56024

831

61854

792

64252

763

67685

742

70241

708

400

33462

382

71

37349

370

41236

352

43324

342

45123

330

46827

314

36

1

450

52700

672

39/13

77

1210

59160

651

65620

616

72080

566

78540

511

85020

453

300

35700

297

70

41480

282

47260

254

53040

224

58820

186

64600

151

2

500

57810

830

47/16

80

1285

64610

810

71390

775

78230

722

85050

657

91820

584

350

39100

403

72

45560

395

52020

365

58480

325

64940

277

71400

234

说明:
1、因双速电机制造标准所限,表中双速风机所配电机功率大于实际所耗率。
2、该系列双速风机配用电机选用"YDT系列风机,泵用其所长变极多速三相异步电动机",原样本选项用"YD系列机床用变极多速三相异步电动机"。YDT系列与YD系列相比,在保证其高速档正常运转下,低速档功率更低,实现低耗能目标,同时降低了电机噪声。
3、风机性能参数表中给出了常用转速下6个典型工况点的参数(实际上风机在有效范围内可以有多种转速和无数个工况点可供选 择)。我公司备有电脑选型软件,可帮您选出合理的各种参数。
二、HTFC型风机进出风口位置编号表

(1)00下出风口00吸风口

(2)900出风口00吸风口

(3)2700出风口00吸风口

(4)00出风口左吸风口

(5)00出风口右吸风口

(6)00出风口左吸风口

(7)00出风口右吸风口

(8)00下出风口900吸风口

(9)00上出风口900吸风口

(10)00下出风口2700吸风口

(11)00上出风口2700吸风口

(12)00上出风口00吸风口

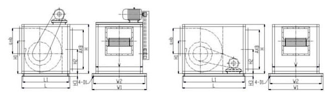
三、HTFC型风机外形尺寸表(单位:mm)
机号

外形尺寸

出风口

进风口

基础

 H

型长 L

型长

a

b

H1

A

H2

H

H

L

L

L1

L

L

L1

W

W1

W2

B

B

H3

D1

9 600

440

650

720

620

820

790

950

600

720

660

260

270

335

450

430

290

300

50

¢12.5

10 600

440

650

720

620

880

790

1000

650

770

710

290

270

335

500

450

290

300

50

¢12.5

12 700 500 740 840 700 1000

960

1200

740

860

800

355

340

420

590

550

350

350

50

¢12.5

15 860 680 860 980 820 1080

1040

1280

860

980

920

440

440

540

710

710

530

430

50

¢12.5

18 960 750 960 1100 920 1280 1240 1480 960 1080 1020

500

490

595

810

810

600

480

63

¢14.5

20 1060 830

1060

1200

1020

1360

1320

1560

1060

1180

1120

530

550

665

910

910

680

530

63

¢14.5

22

1160

920

1160

1350

1120

1480

1440

1700

1160

1320

1240

580

610

735

1010

1010

770

580

63

¢14.5

25

1280

1010

1280

1500

1240

1700

1660

2000

1280

1440

1360

630

680

820

1110

1110

840

640

63

¢14.5

27

1420

1150

1360

1550

1320

1800

1760

2100

1360

1520

1440

680

770

895

1190

1230

980

710

80

¢16.5

30

1500

1250

1500

1700

1460

1920

1880

2200

1500

1660

1580

780

930

905

1330

1330

1080

750

80

¢16.5

33

1680

1400

1760

2000

1720

2100

2060

2400

1760

1960

1860

850

1000

1080

1570

1490

1210

840

100

¢16.5

36

1680

1400

1760

2000

1720

2140

2100

2450

1840

2040

1940

900

1000

1080

1650

1490

1210

840

100

¢16.5

注:1、表中H不含基础高H3,H'、L'、B'为90°、270°出风的箱体尺寸;
2、机号No.为叶轮直径英寸数,A型体积总高度 还需补加电机高度,总宽度补加皮带罩的宽度;
3、A型风机箱,若因设计安装需要,电机也可放于箱体一侧,以降低风机安装总高度。