您当前位置:网站首页> 产品展示> 风机系列> 离心系列风机> 9-19、9-26系列高压离心风机
产品展示 / Products Show
1、WEXD系列边墙风机
2、WBXD系列板壁式轴流风机
4、KDF系列空调风机
厨房排烟家用新风机
9-19高压离心机
机号:4#-6.3# 风量:824-7729 m3/h 风压:3110-9650 Pa
特点:采用A式直联传动,风压高、效率高、高效区宽、结构紧凑、运行可靠
应用:高压强制通风,如锻冶炉等场合
9-19高压离心风机
机号:7.1#-12.5# 风量:3297-19986 m3/h 全压:3320-12350 Pa
特点:采用D式联轴器直联传动,风压高、效率高、高效区宽、结构紧凑、运行可靠
应用:高压强制通风,如锻冶炉等场合
一、9-19 离心风机性能参数表

机号

转速
(rpm)

风量
(m3/h)

全压
(Pa)

功率
(kW)

重量

(kg)

4A

2900

824
1017
1209

3660
3750
3720

2.2

68

1401
1594
1786
1978

3610
3470
3290
3110

3

76

4.5A

2900

1174
1448
1721
1995

4690
4800
4760
4630

4

100

2269
2543
2817

4450
4250
4040

5.5

120

5A

2900

1610
1986
2361
2737

5850
5980
5940
5770

7.5

136

3113
3488
3864

5580
5330
5080

11

184

5.6A

2900

2262
2790
3317

7420
7560
7520

11

208

3845
4373
4901
5429

7320
7080
6790
6500

15

240

6.3A

2900

3221
3972
4723

9480
9650
9590

18.5

288

5475
6226
6978
7729

9360
9080
8720
8370

30

368

7.1D

2900

4610
5685
6761

12140
12350
12280

37

700

7837
8912
9988
11064

12000
11660
11230
10810

45

860

8D

2900

6594

8133

9672

11211

15140

15690

15600

15230

75

1040

12759

14288

15827

14800

14260

13720

110

1070

1450

3297
4067
4836

3790
3860
3840

7.5

570

5605
6375
7144
7913

3740
3620
3470
3320

11

630

机号

转速
(rpm)

风量
(m3/h)

全压
(Pa)

功率
(kW)

重量

(kg)

9D

1450

4695
5790
6886

4840
4930
4910

15

720

7981
9076
10172
11267

4790
4640
4470
4280

18.5

770

10D

1450

6440
7943
9445
10948
12451

6020
6130
6090
5950
5780

30

890

13953
15456

5570
5360

37

920

11.2D

1450

9048

111159

13270

7550

7690

7640

45

1360

15381

17492

19603

21714

7460

7250

6990

6720

75

1600

960

5990
7288
8786
10183
11581

3290
3350
3330
3250
3150

15

1230

12979
14376

3030
2910

18.5

1300

12.5D

1450

12578

15513

18448

9410

9570

9520

75

1700

21383

24317

27252

30187

9300

9030

8700

8370

110

2150

960

8327
10271
12214

4120
4200
4170

22

1400

14157
16100
18043
19986

4080
3960
3820
3670

37

1540

14D

960

11699

14428

17158

5004

5090

5047

37

2300

19888

22618

25348

28078

4917

4709

4494

4249

75

2970

16D

960

17463

21538

25613

6570

6682

6627

75

3780

29687

33762

37837

41912

6456

6180

5898

5575

110

3980

9-26 离心风机性能参数表

机号

转速
(rpm)

风量
(m3/h)

全压
(Pa)

功率
(kW)

重量

(kg)

机号

转速
(rpm)

风量
(m3/h)

全压
(Pa)

功率
(kW)

重量

(kg)

4A

2900

2198

2473

2748

3022

3297

3930

3850

3740

3590

3420

5.5

114

9D

1450

12519

14804

5110

5040

30

900

15649

17214

18779

20344

21909

4920

4770

4590

4380

4160

45

970

3572

3847

3210

3000

7.5

120

4.5A

2900

3572

3847

5010

4920

7.5

132

3912

4303

4695

5086

5477

4790

4610

4400

4160

3900

11

180

10D

1450

17173

19320

21466

6350

6250

6110

55

1090

23613

25760

27906

30053

5940

5730

5480

5220

75

1250

5A

2900

4293

4830

5367

5903

6230

6130

5960

5750

15

210

11.2D

1450

24127

27143

30159

33175

7960

7850

7670

7450

110

2150

6440

6977

7513

5510

5220

4920

18.5

230

5.6A

2900

6030

3786

7870

7740

22

300

36190

39206

42222

7180

6870

6550

132

2250

7540

8294

9048

9802

10556

7540

7300

7000

6670

6310

30

350

960

15974

17970

19967

21964

3470

3420

3340

3240

30

1460

6.3A

2900

8858

9662

10735

10020

9860

9630

45

490

11809

12882

13956

15029

9340

8990

8570

8140

55

580

23961

25957

27954

3120

2980

2830

37

1550

12.5D

960

22207

24982

27758

4350

4280

4190

45

1790

7.1D

2900

12293

13830

12800

12610

75

1050

15366

16903

18439

19976

21513

12330

11970

11540

11050

10520

110

1500

30534

33310

36086

38862

4070

3920

3750

3570

75

2240

8.0D

2900

17585

19783

16250

16010

132

1620

14D

960

31199

35099

5450

5370

75

3100

21982

21180

26378

28576

30774

15650

15200

14660

14030

13360

200

1760

38998

42898

46798

50698

54598

5250

5100

4920

4710

4480

110

3220

1450

8793

9892

10991

4020

3950

3850

18.5

715

16D

960

46571

52392

58213

7120

7020

6860

160

3700

12090

13189

14289

14288

15387

3730

3580

3410

3220

30

800

64035

69856

75677

81499

6660

6420

6150

5850

250

4660

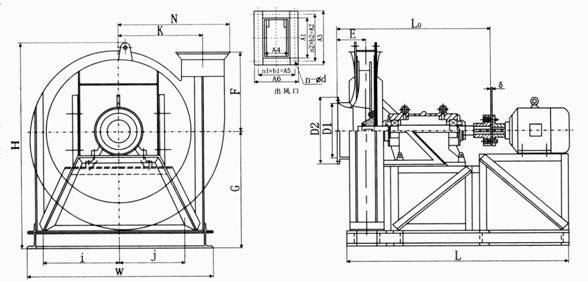
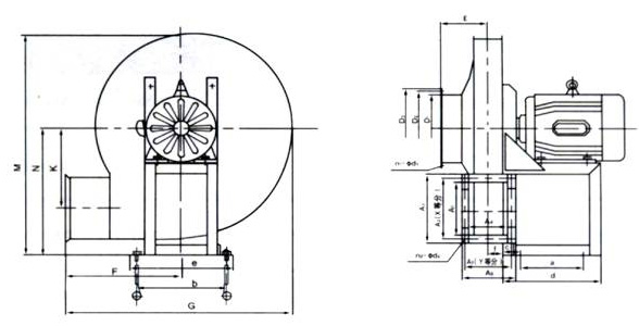
二、9-19 9-26系列风机外形尺寸

9-19  9-26系列 4A -6.3A 离心风机外形尺寸图、表

系列

机 号

D1

D2

D3

n1-Φd1

A1

A2

A3

A4

A5

A6

X

Y

n2-Φd2

9-19

4A

180

220

250

8-7

128

174

214

92

138

178

3

2

10-7

4.5A

200

250

280

8-7

144

198

230

104

152

192

3

2

10-7

5A

224

265

305

8-7

160

206

246

115

160

202

3

2

10-7

5.6A

250

308

348

8-10

179

225

265

129

174

215

3

2

10-7

6.3A

280

335

375

8-10

202

246

288

145

189

231

3

2

10-7

系列

机 号

D1

D2

D3

n1-Φd1

A1

A2

A3

A4

A5

A6

X

Y

n2-Φd2

9-26

4A

224

254

284

8-7

196

228

250

128

165

184

4

3

14-7

4.5A

250

280

310

8-10

221

252

275

144

177

2300

4

3

14-7

5A

280

320

360

8-10

245

284

299

160

192

216

4

3

14-7

5.6A

315

355

395

8-10

274

304

328

179

216

235

5

4

14-7

6.3A

355

395

435

8-10

309

340

365

202

236

261

5

4

10-7

系列

机 号

E

F

G

K

M

N

a

b

c

d

e

f

9-19

4A

108

361

692

286

715

420

200

350

50

300

385

35

4.5A

120

344

716

322

782

450

240

390

50

340

430

39

5A

126

376

788

258

868

500

340

450

50

440

495

43

5.6A

140

415

874

401

962

550

350

480

50

450

534

48

6.3A

157

461

975

451

1085

620

450

570

60

570

626

55

系列

机 号

E

F

G

K

M

N

a

b

c

d

e

f

9-26

4A

132

360

711

287

761

450

240

390

50

340

430

49

4.5A

147

405

799

322

849

500

340

450

50

440

495

55

5A

165

450

887

359

939

550

350

485

50

450

534

61

5.6A

186

504

993

402

1053

620

450

570

60

570

626

68

6.3A

209

567

1117

451

1167

680

550

720

70

690

780

77

9-19  9-26系列7.1D-16D离心风机外形尺寸图、表

系列

机 号

D1

D2

A1

A2

A3

A4

A5

A6

n-Φd

n1×b1

n2×b2

9-19

7.1D

315

395

227

272

313

163

218

248

14-10

3×68

4×68

8D

355

436

256

312

342

184

244

294

14-10

3×76

4×74

9D

400

506

288

348

398

207

263

313

18-10

4×63

5×66

10D

450

550

320

386

426

230

300

340

18-10

1×69

5×72

11.2D

500

620

359

420

484

258

328

388

18-12

4×79

5×83

12.5D

560

680

400

456

489

288

344

380

20-12

4×86

6×76

14D

630

750

448

516

557

322

405

448

22-12

5×81

6×86

16D

710

830

512

574

621

368

440

484

24-12

5×88

7×82

系列

机 号

D1

D2

A1

A2

A3

A4

A5

A6

n-Φd

n1×b1

n2×b2

9-26

7.1D

400

500

348

390

414

227

272

296

20-10

4×68

6×65

8D

450

550

393

432

458

256

300

325

20-10

4×75

6×72

9D

500

620

441

483

507

288

330

357

20-10

4×82.5

6×80.5

10D

560

680

490

528

556

320

356

389

20-10

4×89

6×88

11.2D

630

750

549

600

638

358

410

450

26-12

5×82

8×75

12.5D

710

830

613

664

702

400

456

492

28-12

6×76

8×83

14D

800

920

686

747

795

448

516

564

30-12

6×86

9×83

16D

900

1040

784

840

893

512

588

628

34-12

7×84

10×84

系列

机 号

E

F

G

H

K

N

L0

L

W

i

j

ε

9-19

7.1D

177

466

680

1200

507

656

1230

2100

1150

400

450

4-6

8D

200

525

760

1350

572

733

1256

2220

1250

440

520

4-6

9D

226

590

850

1520

644

821

1289

1930

1400

500

600

4-6

10D

250

656

940

1680

723

908

1317

2060

1500

550

650

6-8

11.2D

280

735

1050

1890

801

1025

1595

2440

1700

600

800

6-8

12.5D

313

820

1160

2100

895

1140

1633

2550

1900

700

900

8-10

14D

350

920

1280

2400

1001

1270

2030

2900

2050

800

950

12-14

16D

400

1050

1440

2700

1144

1460

2090

3400

2250

880

1040

12-14

系列

机 号

E

F

G

H

K

N

L0

L

W

i

j

ε

9-26

7.1D

237

639

730

1260

509

716

1317

2290

1200

420

520

4-6

8D

262

720

810

1410

5740

803

1349

2330

1400

500

600

4-6

9D

294

810

920

1590

646

900

1392

2140

1500

550

650

6-8

10D

327

900

1000

1760

717

995

1433

2260

1600

600

700

6-8

11.2D

367

1008

1130

1980

803

1122

1724

2660

1850

700

850

8-10

12.5D

418

1125

1240

2190

896

1247

1755

2690

1950

740

940

8-10

14D

469

1260

1450

2500

1003

1380

2200

3350

2050

800

950

12-14

16D

524

1440

1540

2800

1148

1610

2270

3650

2300

900

1100

12-14