您当前位置:网站首页> 产品展示> 风机系列> 离心系列风机> 4-72、4-79系列离心风机
产品展示 / Products Show
1、WEXD系列边墙风机
2、WBXD系列板壁式轴流风机
4、KDF系列空调风机
厨房排烟家用新风机
4-72(79)离心风机
机号:2.8#-6# 风量:565-15455m3/h 风压:176-3334pa
特点:采用A式直联传动,后倾式离心叶轮,通风换气、可制作成防爆及防腐型,有钢制和玻璃钢制作
应用:各类大中型工厂和高级民用建筑.大型场馆
4-72(79)离心风机
机号:6#-12# 风量:4420-48800m3/h 风压:317-2118pa
特点:采用E式皮带传动,后倾式离心叶轮,通风换气、可制作成防爆及防腐型,有钢制和玻璃钢制作
应用:各类大中型工厂和高级民用建筑.大型场馆
一二、风机型式及传动试(亦适用于9-19、C6-48及其它离心风机)
风机分左旋和右旋两种型式,从电机(皮带轮)侧正视,叶轮按顺时针方向旋转为右旋,逆时针旋转为左旋。A式为电机直联传动, B、C、E式为皮带传动,D、F式为联轴器传动。
4-72、4-79型离心风机的风口位置示意图
4-72型性能参数表 4-79型性能参数表

机号

转速
(rpm)

风量
(m3/h)

全压
(Pa)

功率
(kW)

重量

(Kg)

2.8A

2900

1131
1480
1828
2177
2356

994
933
835
702
606

1.1

53

1450

565
740
914
1088
1178

248
233
208
175
151

0.37

50

3.2A

2900

1688
2209
2729
3250
3517

1300
1220
1091
918
792

1.5

69

1450

884
1104
1365
1625
1758

324
304
272
229
198

0.55

69

3.5A

2900

2664
3405
4146
4887
5268

1578
1481
1343
1144
989

2.2

82

1450

1332
1706
2073
2444
2634

393
369
335
285
247

0.75

79

4A

2900

4012
4973
5962
6924
7419

2014
1915
1723
1459
1320

5.5

145

1450

2006
2487
2981
3462
3709

501
476
429
363
329

1.1

103

4.5A

2900

5712
7081
8489
9859
10562

2554
2428
2184
1849
1673

7.5

269

1450

2856
3540
4245
4929
5281

634
603
543
460
416

1.1

121

机号

转速
(rpm)

风量
(m3/h)

全压
(Pa)

功率
(kW)

重量

(Kg)

3A

2900

1970
2430
2900
3480
3830

1196
1157
1068
910
725

1.5

57

1450

990
1220
1450
1740
1910

304
284
265
225
176

0.55

58

3.5A

2900

3120
3860
4600
5520
6070

1627
1568
1460
1205
980

3

69

1450

1560
1930
2300
2760
3040

412
392
363
304
245

1.1

69

4A

2900

4670
5760
6860
8240
9080

2316
2048
1901
1578
1274

5.5

93

1450

2330
2880
3430
4120
4540

529
510
480
392
323

1.1

82

4.5A

2900

6640
8200
9790
11720
12920

2696
2598
2412
2000
1618

11

96

1450

3320
4110
4890
5860
6450

676
647
598
500
402

1.5

100

5A

2900

9100
11250
13410
16100
17720

3334
3216
2981
2471
2000

15

125

1450

4560
5630
6710
8050
8860

833
804
745
617
500

2.2

125

4-72型性能参数表-续表 4-79型性能参数表-续表

机号

转速
(rpm)

风量
(m3/h)

全压
(Pa)

功率
(kW)

重量

(Kg)

5A

2900

7728
9928
12128
14328
15455

3187
3074
2792
2335
2019

11

234

1450

3864
4964
6064
7164
7728

790
762
693
580
502

2.2

151

6A

1450

6677
8578
10476
12379
13353

1139
1099
999
836
724

4

187

960

4420
5679
6938
8196
8841

498
481
437
366
317

1.5

177

6C (E)

1800

8288
10648
13008
15367
16576

1760
1697
1543
1291
1116

7.5

335

1600

7667
9465
11562
12637
14734

1389
1339
1217
1019
881

5.5

320

1250

5756
7395
9033
10672
11511

846
816
742
621
537

3

290

1120

5157
6626
8094
9562
10134

679
655
595
498
431

2.2

285

1000

4605
5916
7227
8538
9209

541
522
474
397
344

2.2

285

机号

转速
(rpm)

风量
(m3/h)

全压
(Pa)

功率
(kW)

重量

(Kg)

6A

1450

4890
9740
11600
13920
15320

1196
1157
1068
892
706

5.5

160

960

5230
6420
7680
9220
10100

529
509
470
402
313

1.5

137

7C (E)

1800

17400

20100

22550

25050

27600

2510

2360

2210

2060

1910

22

534

1600

15460

17720

19980

22240

24500

1980

1860

1740

1620

1500

15

513

1250

10820
13340
15850
19160
20850

1206
1167
1078
902
715

7.5

458

1120

9650
11950
14200
17200
18800

970
931
863
725
549

5.5

433

1000

8650
10660
12700
15300
16800

774
745
685
578
460

4

428

4-72型性能参数表-续表 4-79型性能参数表-续表

机号

转速
(rpm)

风量
(m3/h)

全压
(Pa)

功率
(kW)

重量

(Kg)

7C (E)

1800

14660

16750

18930

20860

22263

2478

2348

2157

1968

1754

15

534

1600

13032

15115

16340

17850

19790

1958

1850

1688

1530

1385

11

513

1250

10180

11520

12800

14140

15460

1195

1102

1004

926

846

5.5

458

1000

8145

9200

10255

11350

12368

765

710

650

600

541

3

428

800

6519

7360

8200

9040

9895

490

458

420

380

346

1.5

417

8C (E)

1600

19450

21920

24430

26980

29540

2560

2390

2185

2015

1810

22

627

1250

15200

17170

19140

21110

23080

1560

1445

1330

1215

1100

11

560

1120

13620

15370

17130

18890

20680

1255

1160

1070

975

888

7.5

518

1000

12160

13850

15280

16830

18470

1000

945

870

790

705

5.5

505

900

10950

12390

13860

15130

16620

810

760

695

630

575

4

480

机号

转速
(rpm)

风量
(m3/h)

全压
(Pa)

功率
(kW)

重量

(Kg)

7C (E)

900

7780
9600
11400
13800
15100

627
598
558
470
372

3

424

800

6920
8400
10160
12240
12440

500
470
441
372
294

2.2

417

8C (E)

1600

21500
26500
29200
34200
41700

2490
2422
2235
2177
1480

30

627

1270

17100
21050
25100
30200
33100

1569
1529
1412
1176
931

15

560

1120

15050
18550
22100
26700
29200

1225
1186
1098
921
725

11

518

1000

13450
16550
19750
23800
26050

970
951
872
735
578

7.5

505

900

12100
14900
17800
21400
23500

784
764
706
598
470

5.5

480

800

10760
13250
15800
19050
20850

617
608
558
470
353

4

475

710

9520
11750
14030
16900
18800

490
465
441
372
294

3

471

4-72型性能参数表-续表 4-79型性能参数表-续表

机号

转速
(rpm)

风量
(m3/h)

全压
(Pa)

功率
(kW)

重量

(Kg)

10C (E)

1300

30880

34880

38880

42880

46880

2640

2450

2260

2070

1880

37

1100

1170

27780

31380

34980

38580

42180

2140

1985

1830

1670

1510

30

1090

1040

24700

27900

31100

34300

37500

1690

1570

1450

1330

1210

18.5

1000

940

22310

25210

28110

31010

33910

1380

1280

1180

1080

980

15

965

830

19710

22265

24820

27375

29930

1075

995

915

835

755

11

940

740

17560

19840

22120

24400

26680

855

785

725

665

605

7.5

901

660

15680

17710

19740

21770

23800

680

630

580

530

480

5.5

904

12C (E)

1040

42680

49210

55740

62270

68800

2430

2250

2070

1890

1720

55

1629

机号

转速
(rpm)

风量
(m3/h)

全压
(Pa)

功率
(kW)

重量

(Kg)

10C (E)

1300

38500

44750

51000

57250

63500

2660
2450
2240
2030
1820

55

1104

1170

34600
40225

45850

51475

57100

2160

1990

1820

1650

1480

37

1090

940

27850

32360

36870

41380

45890

1390

1280

1170

1060

950

18.5

964

830

24550

28540

32530

36520

40510

1080

995

910

825

740

15

943

740

21900

25450

29000

32550

36100

860

790

720

650

590

11

901

660

19500

22675

25850

29025

32200

680

630

580

530

475

7.05

904

580

17160

25515

22730

19945

28300

530

490

450

410

380

5.5

893

12C (E)

1040

53300

61925

70550

79180

87800

2440

2250

2060

1870

1680

75

1630

4-72型性能参数表-续表 4-79型性能参数表-续表

机号

转速
(rpm)

风量
(m3/h)

全压
(Pa)

功率
(kW)

重量

(Kg)

10C (E)

1300

30880

34880

38880

42880

46880

2640

2450

2260

2070

1880

37

1100

1170

27780

31380

34980

38580

42180

2140

1985

1830

1670

1510

30

1090

1040

24700

27900

31100

34300

37500

1690

1570

1450

1330

1210

18.5

1000

940

22310

25210

28110

31010

33910

1380

1280

1180

1080

980

15

965

830

19710

22265

24820

27375

29930

1075

995

915

835

755

11

940

740

17560

19840

22120

24400

26680

855

785

725

665

605

7.5

901

660

15680

17710

19740

21770

23800

680

630

580

530

480

5.5

904

12C (E)

1040

42680

49210

55740

62270

68800

2430

2250

2070

1890

1720

55

1629

机号

转速
(rpm)

风量
(m3/h)

全压
(Pa)

功率
(kW)

重量

(Kg)

10C (E)

1300

38500

44750

51000

57250

63500

2660
2450
2240
2030
1820

55

1104

1170

34600
40225

45850

51475

57100

2160

1990

1820

1650

1480

37

1090

940

27850

32360

36870

41380

45890

1390

1280

1170

1060

950

18.5

964

830

24550

28540

32530

36520

40510

1080

995

910

825

740

15

943

740

21900

25450

29000

32550

36100

860

790

720

650

590

11

901

660

19500

22675

25850

29025

32200

680

630

580

530

475

7.05

904

580

17160

25515

22730

19945

28300

530

490

450

410

380

5.5

893

12C (E)

1040

53300

61925

70550

79180

87800

2440

2250

2060

1870

1680

75

1630

4-72型性能参数表-续表 4-79型性能参数表-续表

机号

转速
(rpm)

风量
(m3/h)

全压
(Pa)

功率
(kW)

重量

(Kg)

12C (E)

940

38570

45570

48570

53570

58570

1990

1840

1690

1540

1390

37

1485

830

34060

38475

42890

44305

51720

1550

1435

1320

1205

1090

22

1450

740

30370

34300

38240

42170

46110

1230

1140

1050

960

870

18.5

1422

660

27080

30690

34100

37610

41125

980

910

840

770

700

11

1350

580

23800

26885

29970

33050

36140

755

700

645

590

535

7.5

1320

520

21340

24110

26880

29650

32420

610

565

520

475

430

5.5

1286

机号

转速
(rpm)

风量
(m3/h)

全压
(Pa)

功率
(kW)

重量

(Kg)

12C (E)

940

48200
62400
69600
74600
79300

1951
1794
1676
1490
1333

55

1486

830

42500
55200
61500
65900
70100

1529
1402
1304
1167
1039

37

1452

740

37900
49200
54800
58700
62400

1216
1108
1039
931
823

22

1422

660

33800
43800
48900
52400
55700

961
882
823
735
657

18.5

1349

580

29700
38500
43000
46100
48900

755
686
637
568
509

11

1321

520

26650
34500
38550
41300
43900

603
549
509
451
402

7.5

1286

4-72型性能参数表-续表 4-79型性能参数表-续表

机号

转速
(rpm)

风量
(m3/h)

全压
(Pa)

功率
(kW)

重量

(Kg)

机号

转速
(rpm)

风量
(m3/h)

全压
(Pa)

功率
(kW)

重量

(Kg)

14E

830

57900

66200

74500

82800

91140

2070

1813

1573

1323

1083

55

2660

14E

830

67400

78300

89200

100100

111000

2130

1960

1790

1620

1450

75

1629

740

51650

59050

66450

73850

81250

1650

1450

1250

1050

860

37

2470

740

60100

69800

79500

89200

98900

1600

1486

1375

1262

1150

55

1486

660

46030

52640

59250

65860

72470

1308

1150

955

840

685

30

2285

660

55300

64200

73100

82000

90900

1430

1315

1200

1085

970

37

1452

580

40480

46280

52080

57880

63680

1010

890

770

650

530

18.5

2285

580

47100

54700

62300

69900

77500

1040

955

870

785

700

22

1422

520

36270

41480

46680

51880

57100

425

522

618

715

812

15

2260

520

42200

49025

55850

62675

69500

830

760

694

627

560

18.5

1349

470

32800

37500

42200

446900

51600

660

580

500

420

340

11

2212

460

37300

43350

49400

55450

61500

650.

598

545

492

440

15

1321

420

29298

33500

37700

41900

46118

277

340

405

466

530

7.5

2184

370

30000

34850

39700

44550

49400

420

385

350

315

280

7.5

1276

16E

830

86440

98840

111240

136040

2700

2380

2060

1740

1420

90

3554

16E

740

89700

104225

118750

133275

147800

2220

2042

1865

1687

1510

90

2987

740

77040

88100

99160

110220

121290

1124

1380

1636

1892

2148

75

3464

660

80100

93050

10600

118950

131900

1760

1620

1480

1340

1200

75

2725

660

68720

78590

88190

97830

108180

1709

1510

1301

1098

894

55

3069

580

70300

81700

93100

104500

115900

1360

1250

1140

1030

920

55

2662

580

60390

69060

77730

86400

95070

1320

1165

1010

850

690

37

2882

470

56900

66175

75450

84725

94000

890

820

750

680

610

30

2474

520

54145

61920

69690

77460

85230

1060

935

806

680

555

22

2724

420

50800

59100

67400

75700

845000

710

655

600

545

490

18.5

2422

470

48940

55965

62990

70010

77035

867

760

660

657

454

18.5

2694

330

40000

46525

53050

59575

66100

330

305

280

255

230

11

2340

420

43720

5000

56280

62550

68840

692

620

535

444

362

15

2669

/

/

/

/

/

/

六、4-72、4-79系列风机外形尺寸
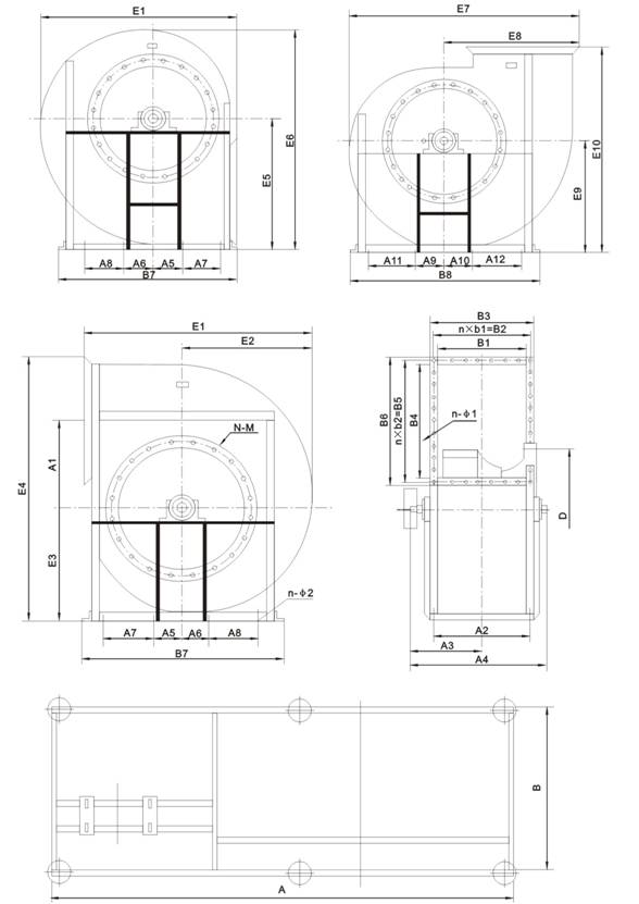
(一)、4-72、4-79系列 2.8A -6A 离心风机外形图
(二)、4-72、4-79系列 6C -12C 离心风机外形图
(三)、4-72、4-79系列 6C -12C 离心风机外形
(四)、4-72系列 2.8A -6A 离心风机外形尺寸表

机号

进风口尺寸

出风口尺寸

D1

D2

D3

n-Φ1

B1

B2

B3

B4

B5

B6

n1×d1

n2×d2

n-Φ2

2.8A

Φ280

Φ305

Φ330

8-Φ8.5

202

234

262

228

258

288

3×78

3×96

12-Φ10

3.2A

Φ320

Φ350

Φ380

10-Φ9.5

230

258

290

260

292

320

3×86

4×73

14-Φ10

3.6A

Φ360

Φ390

Φ420

10-Φ9.5

258

300

338

292

332

372

4×75

4×86

16-Φ10

4A

Φ400

Φ430

Φ460

10-Φ9.5

286

324

366

324

364

404

4×81

4×91

16-Φ10

4.5A

Φ450

Φ480

Φ510

10-Φ9.5

315

356

395

360

400

440

4×89

5×80

18-Φ10

5A

Φ500

Φ540

Φ580

12-Φ9.5

350

400

430

400

450

480

4×100

5×90

18-Φ10

6A

Φ600

Φ640

Φ680

12-Φ8.5

426

475

526

484

534

584

5×95

6×89

22-Φ10

机号

电机型号

安 装 尺 寸

B7

B8

A1

A2

A3

A4

A5

A6

A7

A8

A9

A10

A11

2.8A

Y802-2

232

199

196

100

125

177

225

125

165

145

125

180

160

3.2A

Y90S-2

270

160

226

114

140

190

200

140

200

160

140

190

190

Y712-4

3.6A

Y 100L -2

298

160

258

128

140

217

217

140

200

200

140

217

217

Y802-4

150

4A

Y132S-2

336

230

282

143

220

230

230

220

230

230

220

230

230

Y802-4

150

130

130

130

4.5A

Y132S-2

365

240

319

160

230

240

280

230

290

290

230

280

240

Y90S-4

150

140

140

140

5A

Y 160M -4

400

355

353

177

270

293

293

270

270

270

270

293

293

Y 90L -4

180

150

150

150

6A

Y 112M -4

470

185

423

213

195

375

405

195

395

335

195

405

375

Y 100L -6

178

155

155

245

机号

电机型号

安 装 尺 寸

E1

E2

E3

E4

E5

E6

E7

E8

E9

E10

L

n-Φ

2.8A

Y802-2

496

274

355

587

574

232

290

512

250

592

482

6-Φ10.5

3.2A

Y90S-2

554

314

405

671

652

266

330

570

282

668

534

6-Φ12.5

Y712-4

3.6A

Y 100L -2

638

352

460

762

742

304

360

658

313

752

590

6-Φ12.5

Y802-4

565

4A

Y132S-2

700

390

480

810

814

330

420

730

350

834

763

6-Φ12.5

Y802-4

602

4.5A

Y132S-2

778

437

560

929

908

369

460

801

390

929

799

6-Φ14.5

Y90S-4

942

5A

Y 160M -4

857

484

610

1019

1001

409

500

874

415

1008

953

6-Φ14.5

Y 90L -4

746

6A

Y 112M -4

1032

581

750

1241

1206

491

600

1051

500

1215

844

6-Φ14.5

Y 100L -6

824

(五)、4-72系列 6C -12C 离心风机外形尺寸表

机号

进风口尺寸

出风口尺寸

H1

H2

H3

D1

D2

B1

B2

B3

B4

B5

B6

n-Φ1

n×b1

n×b2

6C

Φ600

Φ640

426

475

526

484

534

584

22-Φ12.5

6×89

5×95

830

680

580

7C

Φ700

Φ740

498

550

598

566

618

666

22-Φ12.5

6×103

5×110

920

775

665

8C

Φ800

Φ840

560

610

660

640

690

740

22-Φ12.5

6×115

5×122

1040

880

760

10C

Φ1000

Φ1050

710

762

810

808

858

908

24-Φ12.5

6×143

6×127

1300

1100

950

12C

Φ1200

Φ1250

850

910

970

968

1032

1088

30-Φ12.5

8×129

7×130

1500

1300

1100

机号

B7

B8

A1

A2

A3

A4

E1

E2

E3

E4

E5

E6

E7

E8

M1

L

W

6C

850

1700

423

216

476

950

1032

452

750

1241

715

1206

600

1051

M12

1860

1080

7C

895

1790

613

253

512

1138

1193

516

840

1412

826

1439

1226

1426

M12

1950

1200

8C

1000

2120

562

283

610

1201

1578

570

960

1608

932

1578

1378

1612

M12

2300

1270

10C

1250

2500

702

358

780

1385

1674

712

1200

2012

1156

1968

1712

2006

M12

2700

1570

12C

1600

3200

842

428

920

1516

2004

844

1400

2372

1386

2358

2052

2386

M12

3400

1700

(六)、4-72系列14E-16E离心风机外形尺

进风口尺寸

出 风 口 尺 寸

D

n-M

B1

B2

B3

B4

B5

B6

n-Ф1

n×b1

n×b2

A1

A2

14E

Ф1470

24-M12

996

1062

1122

1118

1180

1244

38-Ф14

9×118

10×118

986

1076

16E

Ф1670

24-M12

1130

1200

1250

1290

1353

1410

42-Ф14

10×120

11×123

1134

1230

安装及外形尺寸图

A3

A4

A5

A6

A7

A8

A9

A10

A11

A12

B7

B8

14E

777

1404

270

270

550

550

280

280

560

560

1960

2000

16E

986

1740

310

310

620

620

375

375

600

600

2350

2400

安装及外形尺寸图

E1

E2

E3

E4

E5

E6

E7

E8

E9

E10

n-Ф

A

B

14E

2428

1343

1160

2770

1645

2778

2744

1610

1380

2465

8-Ф18

4000

1670

16E

2670

1549

1350

3192

1850

3149

3141

1842

1560

2681

8-Ф12

4950

1980

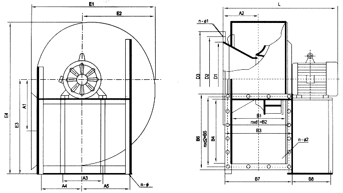
(七)、4-79系列 3A -6A 离心风机外形尺寸

机号

进风口尺寸

出风口尺寸

D1

D2

D3

n-Φ1

B1

B2

B3

B4

B5

B6

n1×d1

n2×d2

n-Φ2

3A

Φ300

Φ330

Φ360

8-Φ8.5

216

246

276

244

276

304

3×82

3×92

12-Φ10

3.5A

Φ350

Φ380

Φ410

10-Φ8.5

251

292

331

284

324

364

4×73

4×81

16-Φ10

4A

Φ400

Φ430

Φ460

10-Φ8.5

286

324

366

324

364

404

4×81

4×91

16-Φ10

4.5A

450

480

510

10-Φ8.5

315

356

395

360

400

440

4×89

5×80

18-Φ10

5A

Φ500

Φ540

Φ580

12-Φ8.5

350

400

430

400

450

480

4×100

5×90

18-Φ10

6A

600

640

680

12-Φ8.5

426

475

526

484

534

584

5×95

6×89

22-Φ10

机号

电机型号

安 装 尺 寸

B7

B8

A1

A2

A3

A4

A5

A6

A7

A8

A9

A10

A11

3A

Y802-2

256

140

209

145

125

183

230

125

170

170

125

230

183

Y701-4

3.5A

Y901-2

291

160

249

173

140

217

217

140

200

200

140

217

217

Y801-4

150

4A

Y132S-2

336

230

282

199

220

230

230

220

230

230

220

230

230

Y802-4

150

130

130

130

4.5A

Y132S-2

365

240

319

225

230

240

280

230

290

290

230

280

240

Y90S-4

150

140

140

140

5A

Y 160M -4

400

355

353

251

270

293

293

270

270

270

270

293

293

Y 90L -4

180

150

150

150

6A

Y 112M -4

470

185

423

291

195

375

405

195

395

335

195

405

375

Y 100L -6

178

155

155

245

机号

电机型号

安 装 尺 寸

E1

E2

E3

E4

E5

E6

E7

E8

E9

E10

L

n-Φ

3A

Y802-2

527

294

380

628

611

249

310

544

260

623

498

6-Φ10.5

Y701-4

3.5A

Y901-2

612

344

450

741

721

291

345

638

300

731

583

6-Φ12.5

Y801-4

558

4A

Y132S-2

700

390

480

810

814

330

420

730

350

834

763

6-Φ12.5

Y802-4

602

4.5A

Y132S-2

778

437

560

929

908

369

460

801

390

929

799

6-Φ12.5

Y90S-4

642

5A

Y 160M -4

857

484

610

1019

1001

409

500

874

415

1008

953

6-Φ14.5

Y 90L -4

746

6A

Y 112M -4

1032

581

750

1241

1206

491

600

1051

500

1215

844

6-Φ14.5

Y 100L -6

824

(八)、4-79系列 7C -12C 离心风机外形尺寸

机号

进风口尺寸

出风口尺寸

H1

H2

H3

D1

D2

B1

B2

B3

B4

B5

B6

n-Φ2

n1×d1

n2×d2

7C

Φ700

Φ740

498

550

598

566

618

666

22-Φ12.5

5×110

6×103

920

790

680

8C

Φ800

Φ840

560

610

660

640

690

740

22-Φ12.5

5×122

6×115

1040

880

760

10C

Φ1000

Φ1050

710

762

810

808

858

908

24-Φ12.5

6×127

6×143

1300

1100

950

12C

Φ1200

Φ1250

850

910

970

968

1032

1088

30-Φ12.5

7×130

8×129

1500

1300

1100

机号

B7

B8

A1

A2

A3

A4

E1

E2

E3

E4

E5

E6

E7

E8

M1

L

W

7C

970

1940

493

252

548

1058

1193

677

840

1412

826

1439

1243

1266

12

2100

1190

8C

1060

2120

562

283

610

1121

1578

168

960

1608

932

1578

1628

1489

12

2300

1270

10C

1250

2500

702

358

780

1385

1674

962

1200

2012

1156

1968

1724

2018

12

2700

1570

12C

1600

3200

842

428

920

1516

2004

1152

1400

2372

1386

2358

2054

2408

12

3400

1700

(九)、4-79系列14E-16E离心风机外形尺寸表

进风口尺寸

出 风 口 尺 寸

D

n-M

B1

B2

B3

B4

B5

B6

n-Ф1

n×b1

n×b2

A1

A2

14E

Ф1470

24-M12

996

1062

1122

1118

1180

1244

38-Ф14

9×118

10×118

986

1076

16E

Ф1670

24-M12

1130

1200

1250

1290

1353

1410

42-Ф14

10×120

11×123

1134

1230

安装及外形尺寸图

A3

A4

A5

A6

A7

A8

A9

A10

A11

A12

B7

B8

14E

777

1404

270

270

550

550

280

280

560

560

1960

2000

16E

986

1740

310

310

620

620

375

375

600

600

2350

2400

安装及外形尺寸图

E1

E2

E3

E4

E5

E6

E7

E8

E9

E10

n-Ф

A

B

14E

2428

1343

1160

2770

1645

2778

2744

1610

1380

2465

8-Ф18

4000

1670

16E

2670

1549

1350

3192

1850

3149

3141

1842

1560

2681

8-Ф12

4950

1980